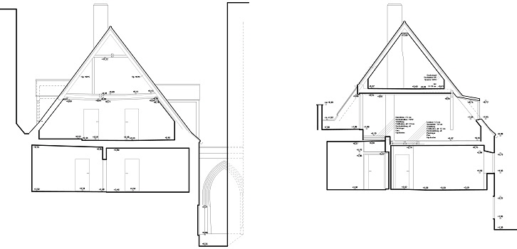
Denkmalgeschützte Villa, München
1
2
3
4
5
6
7
Altstadtgebäude, Freising
Ruffiniblock, München
Historische Gaszählerwerkstätte, München
Studentenwohnheim, München
Villa, München
Dachstuhl, München
Interior Design
Möbeldesign
Visualisierung
Bestandsaufnahme
Profil
Kontakt
Impressum
pdf-download